
·Designed with dedicated software
· Strong ability to withstand short-circuit current
· Optimize the selection of core magnetic flux density and wire current density, with low noise, low loss, long life, and low temperature rise
· The iron core reactor coil is cast with epoxy resin
· Rated frequency: 50Hz
· Number of phases: single-phase or three-phase
· System rated voltage: 6, 10, 35kV
· Rated reactance rate
0.1%, 0.3%, 0.5%, 1%, mainly used to limit the closing inrush current
4.5%, 5%, 6%, used to limit the closing inrush current and suppress the 5th and above harmonics
12%, 13%, used to limit the closing inrush current and suppress the 3rd and above harmonics
· Installation location: indoor and outdoor
· Ambient temperature: -40℃~+40℃
· Relative humidity: the relative humidity does not exceed 90%
· Altitude: ≤2000m
· Maximum wind speed: 35m/s
· Seismic requirements: able to withstand the action of an earthquake intensity of 8 degrees without being damaged
· Anti-pollution ability: the creepage distance of the external insulation is not less than 25mm/kV (relative to the highest working voltage of the system)
High-voltage dry-type iron core series reactor
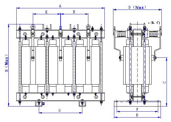
model | Parallel capacitor bank capacity kvar | Voltage of parallel capacitor bank kV | System voltage kV | Rated reactance rate% | Rated reactance value Ω | Rated current A | Rated capacity kvar | Loss W(95℃) | Overall dimension mm (see attached picture) | |||||||
A | B | C | D | E | H | F | G | |||||||||
RRDE-6-4.5/6 | 75 | 6.6 | 6 | 6 | 34.85 | 6.56 | 4.5 | 101 | 650 | 310 | 320 | 200 | 175 | 560 | 250 | 215 |
RRDE-6-6.0/6 | 100 | 6.6 | 6 | 6 | 26.14 | 8.75 | 6 | 119 | 650 | 310 | 320 | 200 | 175 | 560 | 250 | 215 |
RRDE-6-9.0/6 | 150 | 6.6 | 6 | 6 | 17.42 | 13.12 | 9 | 152 | 750 | 310 | 450 | 230 | 180 | 610 | 250 | 235 |
RRDE-6-12/6 | 200 | 6.6 | 6 | 6 | 13.07 | 17.50 | 12 | 185 | 750 | 310 | 450 | 230 | 190 | 690 | 250 | 275 |
RRDE-6-18/6 | 300 | 6.6 | 6 | 6 | 8.71 | 26.24 | 18 | 219 | 750 | 310 | 450 | 230 | 190 | 690 | 250 | 275 |
RRDE-6-24/6 | 400 | 6.6 | 6 | 6 | 6.53 | 34.99 | twenty four | 281 | 840 | 400 | 500 | 265 | 200 | 870 | 350 | 400 |
RRDE-6-27/6 | 450 | 6.6 | 6 | 6 | 5.81 | 39.37 | 27 | 288 | 840 | 400 | 500 | 265 | 200 | 870 | 350 | 400 |
RRDE-6-30/6 | 500 | 6.6 | 6 | 6 | 5.23 | 43.74 | 30 | 300 | 840 | 400 | 500 | 265 | 200 | 870 | 350 | 400 |
RRDE-6-36/6 | 600 | 6.6 | 6 | 6 | 4.36 | 52.49 | 36 | 325 | 840 | 400 | 500 | 265 | 200 | 870 | 350 | 400 |
RRDE-6-45/6 | 750 | 6.6 | 6 | 6 | 3.48 | 65.61 | 45 | 419 | 910 | 400 | 500 | 290 | 210 | 950 | 350 | 420 |
RRDE-6-48/6 | 800 | 6.6 | 6 | 6 | 3.27 | 69.98 | 48 | 435 | 910 | 400 | 500 | 290 | 210 | 950 | 350 | 420 |
RRDE-6-60/6 | 1000 | 6.6 | 6 | 6 | 2.61 | 87.48 | 60 | 448 | 910 | 400 | 500 | 290 | 215 | 990 | 350 | 420 |
RRDE-6-90/6 | 1500 | 6.6 | 6 | 6 | 1.74 | 131.22 | 90 | 584 | 1020 | 500 | 500 | 320 | 225 | 1060 | 450 | 450 |
RRDE-6-108/6 | 1800 | 6.6 | 6 | 6 | 1.45 | 157.46 | 108 | 556 | 1020 | 500 | 500 | 320 | 225 | 1060 | 450 | 450 |
RRDE-11-4.5/6 | 75 | 11 | 10 | 6 | 96.80 | 3.94 | 4.5 | 101 | 650 | 310 | 320 | 200 | 175 | 560 | 250 | 215 |
RRDE-11-6.0/6 | 100 | 11 | 10 | 6 | 72.60 | 5.25 | 6 | 119 | 650 | 310 | 320 | 200 | 175 | 560 | 250 | 215 |
RRDE-11-9.0/6 | 150 | 11 | 10 | 6 | 48.40 | 7.87 | 9 | 152 | 750 | 310 | 450 | 230 | 180 | 610 | 250 | 235 |
RRDE-11-12/6 | 200 | 11 | 10 | 6 | 36.30 | 10.50 | 12 | 185 | 750 | 310 | 450 | 230 | 190 | 690 | 250 | 275 |
RRDE-11-18/6 | 300 | 11 | 10 | 6 | 24.20 | 15.75 | 18 | 219 | 750 | 310 | 450 | 230 | 190 | 690 | 250 | 275 |
RRDE-11-24/6 | 400 | 11 | 10 | 6 | 18.15 | 21.00 | twenty four | 281 | 840 | 400 | 500 | 265 | 200 | 870 | 350 | 400 |
RRDE-11-27/6 | 450 | 11 | 10 | 6 | 16.13 | 23.62 | 27 | 288 | 840 | 400 | 500 | 265 | 200 | 870 | 350 | 400 |
RRDE-11-30/6 | 500 | 11 | 10 | 6 | 14.52 | 26.24 | 30 | 300 | 840 | 400 | 500 | 265 | 200 | 870 | 350 | 400 |
RRDE-11-36/6 | 600 | 11 | 10 | 6 | 12.10 | 31.49 | 36 | 325 | 840 | 400 | 500 | 265 | 200 | 870 | 350 | 400 |
RRDE-11-45/6 | 750 | 11 | 10 | 6 | 9.68 | 39.37 | 45 | 419 | 910 | 400 | 500 | 290 | 210 | 950 | 350 | 420 |
RRDE-11-48/6 | 800 | 11 | 10 | 6 | 9.08 | 41.99 | 48 | 435 | 910 | 400 | 500 | 290 | 210 | 950 | 350 | 420 |
RRDE-11-60/6 | 1000 | 11 | 10 | 6 | 7.26 | 52.49 | 60 | 448 | 910 | 400 | 500 | 290 | 215 | 990 | 350 | 420 |
RRDE-11-90/6 | 1500 | 11 | 10 | 6 | 4.84 | 78.73 | 90 | 584 | 1020 | 500 | 500 | 320 | 225 | 1060 | 450 | 450 |
RRDE-11-108/6 | 1800 | 11 | 10 | 6 | 4.03 | 94.48 | 108 | 556 | 1020 | 500 | 500 | 320 | 225 | 1060 | 450 | 450 |
Note: Any product is constantly improving, and subject to change without notice. For more detailed information and products with unlisted voltages, models and specifications, please contact the supplier.
